Model Studio CS Строительные решения
|
|
Model Studio CS Строительные решения — эффективный и простой программный продукт для быстрого и удобного создания зданий и сооружений объектов промышленного и гражданского строительства и выпуска проектной/рабочей документации.
Model Studio CS Строительные решения значительно расширяет возможности платформы AutoCAD/nanoCAD, делая работу инженера более комфортной и эффективной.
Комплекс позволяет решать следующие задачи: формирование трехмерной информационной модели строительных конструкций по разделам АР, АС, КМ, КЖ; формирование и выпуск проектной и рабочей документации в соответствии с требованиями ГОСТ и популярными отраслевыми стандартами, включая автоматический расчёт объёмов работ в процессе разработки проекта; экспорт трехмерной модели в расчетный комплекс ПК ЛИРА-САПР, ПК ЛИРА и ПК SCAD Office; выполнять все необходимые проверки на предмет обнаружения коллизий, пересечений, нарушений предельно допустимых расстояний со смежными специальностями; интегрировать геологическую модель (например, созданную в программе CREDO) с трехмерной моделью Model Studio CS, а затем использовать данные модели для генерации продольного профиля и таблицы условных обозначений.
Model Studio CS Строительные решения значительно расширяет возможности новой Платформы nanoCAD и AutoCAD, делая работу инженера более комфортной и эффективной.
Программный комплекс разрабатывался как оптимальный инструмент для проектирования заводов, объектов электроэнергетики, обустройства месторождений, добывающих и перерабатывающих производств, насосных станций и объектов городского хозяйства, складов и терминалов, объектов жилой и административной инфраструктуры производств. Он включает в себя библиотеки строительных изделий и конструкций.
Оптимальная автоматизация обеспечивается уникальным сочетанием Model Studio CS Строительные решения и Платформы nanoCAD, которое во многом превосходит аналоги на базе программ иностранных разработчиков, поскольку создано с учетом отечественной школы проектирования и соответствует требованиям российских норм и правил.
Модели, создаваемые в Model Studio CS Строительные решения, содержат всю необходимую атрибутивную информацию и являются основой для генерации проектно-сметной документации.
Программный комплекс разрабатывался как оптимальный инструмент для проектирования заводов, объектов электроэнергетики, обустройства месторождений, добывающих и перерабатывающих производств, насосных станций и объектов городского хозяйства, складов и терминалов, объектов жилой и административной инфраструктуры производств. Он включает в себя библиотеки строительных изделий и конструкций.
Оптимальная автоматизация обеспечивается уникальным сочетанием Model Studio CS Строительные решения и Платформы nanoCAD, которое во многом превосходит аналоги на базе программ иностранных разработчиков, поскольку создано с учетом отечественной школы проектирования и соответствует требованиям российских норм и правил.
Модели, создаваемые в Model Studio CS Строительные решения, содержат всю необходимую атрибутивную информацию и являются основой для генерации проектно-сметной документации.

Формирование трехмерной информационной модели
Сохраняя модель в CADLib Модель и Архив, пользователь автоматически создает информационную систему поддержки строительства и эксплуатации (BIM) с широкими возможностями.

Фрагмент модели административного здания
Model Studio CS Строительные решения совместно с nanoCAD Облака точек может использоваться при реконструкции промышленных зданий и сооружений. Благодаря простоте и продуманности инструментов эта связка позволяет легко воссоздать модель на основе облака точек, полученных в результате лазерного сканирования.

Формирование модели по скану промышленной площадки
База строительных элементов, изделий и материалов
В Model Studio CS Строительные решения база данных строительных элементов, изделий и материалов постоянно актуализируется и является самой важной составляющей программного комплекса. Интеллектуальные объекты, хранящиеся в ней, обеспечивают инженера необходимыми средствами для создания модели. Строительные элементы, хранящиеся в базе данных, содержат параметрические геометрические объекты с необходимым набором атрибутивной информации, а также дополнительную информацию и специальные элементы управления геометрией, обеспечивающие интеллектуальное поведение элементов.
Пользователи могут самостоятельно создавать новые элементы параметрической графики, сохранять их и пополнять типоразмеры.
База данных строительных элементов, изделий и материалов Model Studio CS встроена в среду проектирования и не требует вызова дополнительных программ: комфортное диалоговое окно предоставляет пользователю удобный и наглядный доступ к ней.
Инженер, использующий Model Studio CS, получает все инструменты, необходимые для работы с базой данных: поиск (простой или с предварительно заданными условиями), работа с предопределенными выборками, классификаторами. Предусмотрена возможность без вставки в чертеж просмотреть, как выглядит объект и (также без вставки) получить полную информацию о нем: марку, размеры, название завода-изготовителя, материал, вес, состав и другие данные, необходимые для принятия решения.

База данных строительных элементов и изделий встроена в среду проектирования
Гибкая, с хорошо продуманной эргономикой система разработки и пополнения базы данных интеллектуальных объектов позволяет без труда сохранять в ней новое оборудование, изделия и материалы.
Формирование трехмерной информационной модели
Model Studio CS Строительные решения позволяет выполнять все необходимые виды операций по созданию зданий и сооружений разделов проекта АР, АС, КМ, КЖ при помощи специальных инструментов и параметрических объектов базы данных:
- использование интеллектуальных параметрических архитектурно-строительных объектов (стены, сэндвич-панели, окна, двери, помещение, отделка, лестницы и площадки, опоры, мебель, элементы благоустройства и многое другое);

Размещение ограждающих конструкций
- создание металлических конструкций и изделий на основе стандартных профилей металлопроката базы данных;

Генератор металлического каркаса путем ввода основных параметров
- конструирование узловых соединений металлоконструкций на основе типовых параметрических объектов базы данных или проработка узла вручную из набора отдельных фасонных деталей (пластина, сварка, болты).
Работа со сваркой — https://youtu.be/zHnuDPOzM5g
Готовые узлы могут быть скопированы и изменены в модели, а также сохранены в базу данных строительных элементов, что позволяет пользователю не проделывать повторно одну и ту же работу.

Примеры пользовательских параметрических узлов
В Model Studio CS Строительные решения существенно расширены возможности работы с железобетонными конструкциями, что позволяет значительно упростить и ускорить процесс их размещения в модели:
- формирование основания под блочные и блочно-модульные здания путем выбора строительной сетки осей с возможностью задавать количество свай по осям X и Y, расстояния между ними, смещения свай от края блока, указания марки, отметки верха ростверков и длину свай в грунте;
Формирование свайного поля — https://youtu.be/dSpIE7yyc-s
автоматизированное армирование железобетонных конструкций с помощью специализированного Мастера армирования путем ввода основных параметров.

Пример армирования столбчатого фундамента
При использовании Платформы nanoCAD специальная команда MCLIP, предназначенная для пользователей, работающих в 3D-пространстве, позволяет ограничить видимость объектов плоскостями. Изменять ограничивающую призму можно с помощью функциональных «ручек». Дополняет этот инструмент новая специальная панель Именованные виды, которая обеспечивает возможность сохранять настройки подрезки.
Предусмотрена возможность передачи 3D-модели здания и данных по нему напрямую из программного комплекса Model Studio CS Строительные решения в программные комплексы ЛИРА-САПР, ЛИРА 10.x и SCAD Office для прочностного анализа конструкции методом конечных элементов.
Передача данных выполняется для металлических каркасов (стержневые конечные элементы), а также стен и плит перекрытий (строительные железобетонные поверхности — оболочечные конечные элементы):
- стержневые элементы передаются в следующем объеме:
- координаты местоположения,
- геометрические характеристики профилей металлопроката,
- марки сталей;
- пластинчатые элементы передаются в следующем объеме:
- координаты местоположения,
- геометрия, включая данные о проемах,
- толщина пластины.

Трехмерная модель Model Studio CS, передаваемая в программный комплекс ЛИРА 10.x

Трехмерная модель Model Studio CS, открытая в программном комплексе ЛИРА 10.x
Проверка модели на коллизии
Model Studio CS Строительные решения совместно с CADLib Модель и Архив позволяет выполнять все необходимые проверки на предмет обнаружения коллизий, пересечений, нарушения предельно допустимых расстояний. Встроенная система проверки коллизий в CADLib Модель и Архив обеспечивает возможность анализировать расстояния между строительными конструкциями и инженерными коммуникациями, а также между другими объектами, переданными из Model Studio CS.

Проверка на предмет коллизии
Учет геологической обстановки при проектировании
В Model Studio CS Строительные решения предусмотрен функционал по интеграции проектируемых моделей и данных геологии, импортированных из специализированного ПО. Интеграция осуществляется посредством передачи данных о геологических слоях проектируемого объекта в базу данных проекта Model Studio CS (CadLib Проект). Основными задачами, решаемыми с учетом геологической особенности, являются построение траншей, котлованов, скважин и автоматическая генерация ведомости объемов земляных работ с разбивкой общего объема разработки на отдельные грунты, а также генерация продольных профилей с геологическим разрезом.

Учет рельефа местности
Генератор чертежей
Средства генерации чертежей позволяют задавать правила формирования плана, разреза, вида и оформления, после чего программа будет автоматически генерировать и оформлять чертеж в соответствии с заданными правилами.
Чтобы задать правила оформления проектных документов, используются стандартные средства Model Studio CS для формирования видов, разрезов и узлов, а также подсистема автоматической простановки размеров, выносок и отметок уровня.
В дополнение к правилам оформления, основанным на ГОСТ, пользователь может настроить собственные правила оформления разрезов и планов чертежа. Для этого применяется специальный Мастер, который позволяет создавать, хранить, импортировать и экспортировать профили простановки размеров и элементов оформления.
Автоматическая генерация чертежей средствами Model Studio CS значительно сокращает сроки выпуска документации. Процесс получения чертежа весьма прост, понятен любому проектировщику и сводится к выполнению нескольких простых действий:
- определить линию разреза, а также его глубину и высоту, то есть установить границы вида на модели;
- выбрать из списка необходимый профиль генерации проекции и указать место на чертеже.

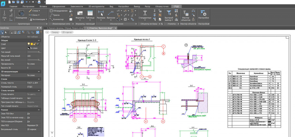
Автоматическая генерация чертежей в Model Studio CS Строительные решения
Расширенный функционал в обновленной версии Model Studio CS Строительные решения позволяет:
- проставлять автовыноски для подчиненных элементов параметрического объекта при генерации 2D-проекций;
Выноски для подчиненных элементов — https://youtu.be/YxhDh6pKCwE
- выполнять пакетную генерацию проекций на основе выбранных определений видов с разбиением на листы в случае превышения размера форматки.
Пакетная генерация проекций узловых соединений — https://youtu.be/UVX6Ex8ieyE
Пакетная генерация проекций раскладки сэндвич-панелей — https://youtu.be/plb1Plyftck

Профили проекций, входящие в комплект поставки Model Studio CS Строительные решения
Очень часто в процессе работы с *.dwg-чертежами появляются многочисленные версии одного и того же документа. При совместном использовании Model Studio CS Строительные решения и Платформы nanoCAD для выявления изменений в разных версиях чертежей используется функциональная панель Сравнение файлов. dwg. При сравнении определяются объекты, которые были изменены, добавлены или удалены.

Сравнение версионности файлов
В состав дистрибутива Платформы nanoCAD в виде отдельного модуля вошел специализированный функционал продукта nanoCAD СПДС, который предоставляет пользователям строительные конфигурации универсальной платформы в плане рутинных операций по дооформлению готовых чертежей: планов, фасадов, разрезов, сечений, видов, узлов и т.д.

Пример дооформления чертежа с помощью nanoCAD СПДС
Автоматическое формирование спецификаций
Model Studio CS Строительные решения на основе созданной трехмерной информационной модели автоматически формирует такие табличные документы, как техническая спецификация стали, ведомость расхода стали, ведомость деталей, ведомость объемов работ и другие. В ячейках таблиц учитывается автоматизация создания дроби.
Генерация происходит в полностью автоматическом режиме, пользователю необходимо лишь выбрать требуемый шаблон и формат приложения (nanoCAD/AutoCAD, Microsoft Office), в которое будет выгружен финальный вариант.

Спецификации, полученные в Model Studio CS Строительные решения

Формирование ведомости объемов работ
Model Studio CS Строительные решения является гармоничной составляющей комплексной системы проектирования — единственной на платформе nanoCAD/AutoCAD, которая работает с учетом национальных стандартов и традиций проектирования.
Новые возможности Model Studio CS Строительные решения
- Построение откосов, расчёт и оформление картограммы по площадке;
- Вывод полной информации при создании маркера помещения: номер, наименование, площадь и категория;
- Добавлена команда «Круговые координатные оси»;
- Добавлена команда, позволяющая создавать и редактировать многослойные конструкции путём задания слоёв в специальном диалоговом окне;
- Добавлена команда по созданию металлической пластины с запросом плоскости построения по трём точкам;
- Добавлена опция обрезки (фаски) в редактировании ручками через контекстное меню для металлической пластины;
- Возможность использования готовых ферм базы данных в конструкторе металлических каркасов;
- Реализован прямой экспорт 3D модели здания в ПК SCAD Office и ПК ЛИРА-САПР;
- Экспорт/Импорт 3D модели металлической конструкции из ПК ЛИРА 10. х;
- Обновлен алгоритм параметризации металлических узлов;
- Добавлен инструментарий по вставке графических эскизов в спецификации и ведомости;
- Реализован диалог выбора свойств при создании и редактирования арматуры;
- Добавлена команда для разделения арматурного стержня в заданной точке;
- Добавлена возможность создания защитного слоя бетона в арматурной сборке при формировании отверстия;
- Добавлены команды, которые позволяют разбивать сетки сварные по ГОСТ на отдельные стержни и формировать из них арматурные сборки;
- Добавлен мастер армирования плоских стен с учётом оконных, дверных проёмов и технологических отверстий;
- Добавлены мастера армирования буроопускной сваи, столбчатого фундамента, фундаментной балки, круглой плиты, фундамента типа «корыто» и кольцевого фундамента;
- Добавлена команда создания ведомости деталей для арматурных изделий и арматурных сборок.
Назад в раздел




